Projekte
Profil
Kontakt
A010
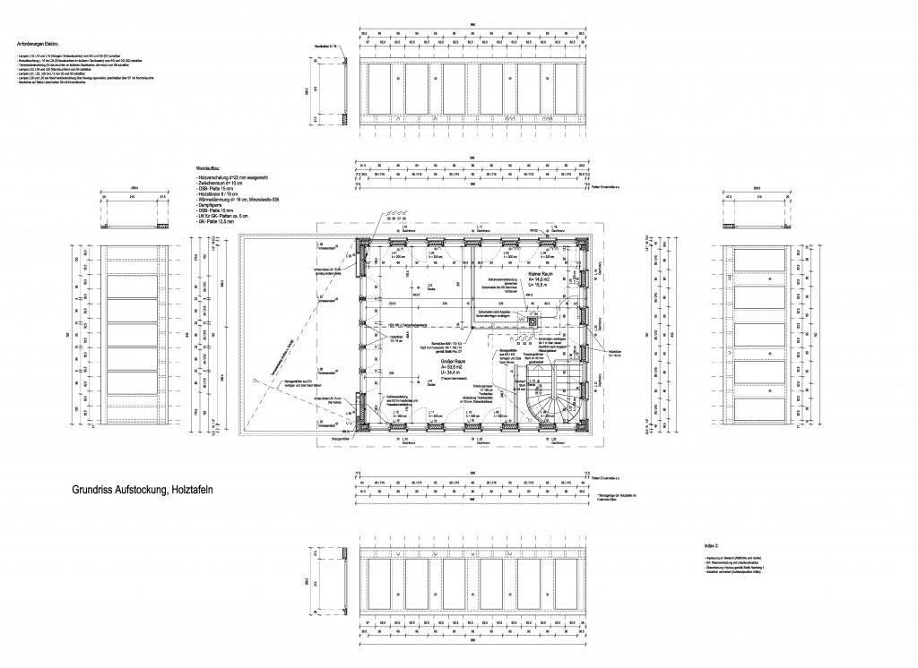
Aufstockung eines Pavillons in Holzständerbauweise, 2005