Projekte
Profil
Kontakt
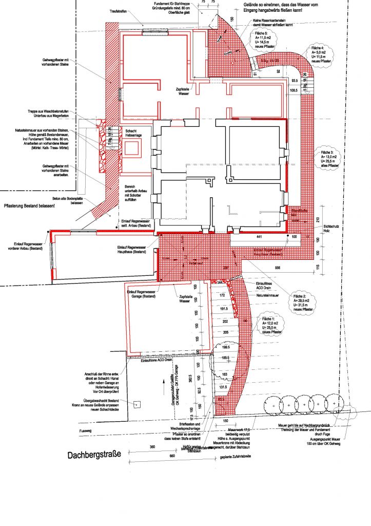
A016
Umbau und Erweiterung eines Einfamilienhauses, 2007