Projekte
Profil
Kontakt
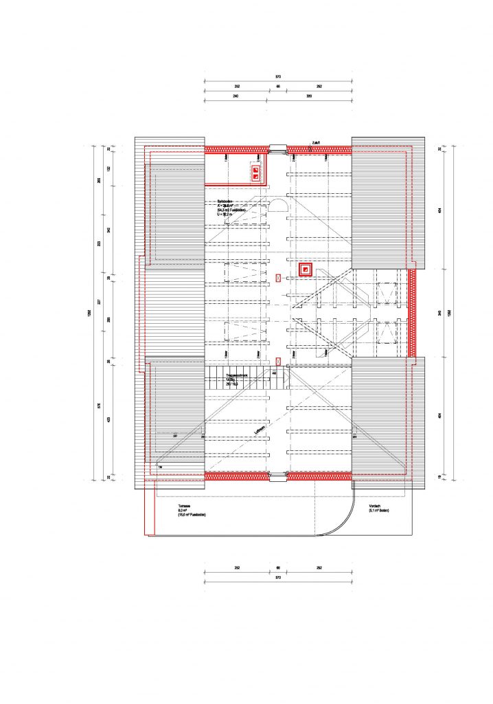
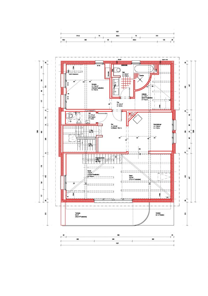
A042
Abbruch und Neubau eines Dachgeschosses in Holzständerbauweise, 2009