Projekte
Profil
Kontakt
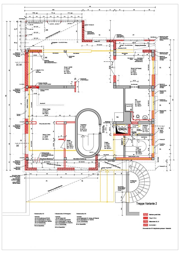
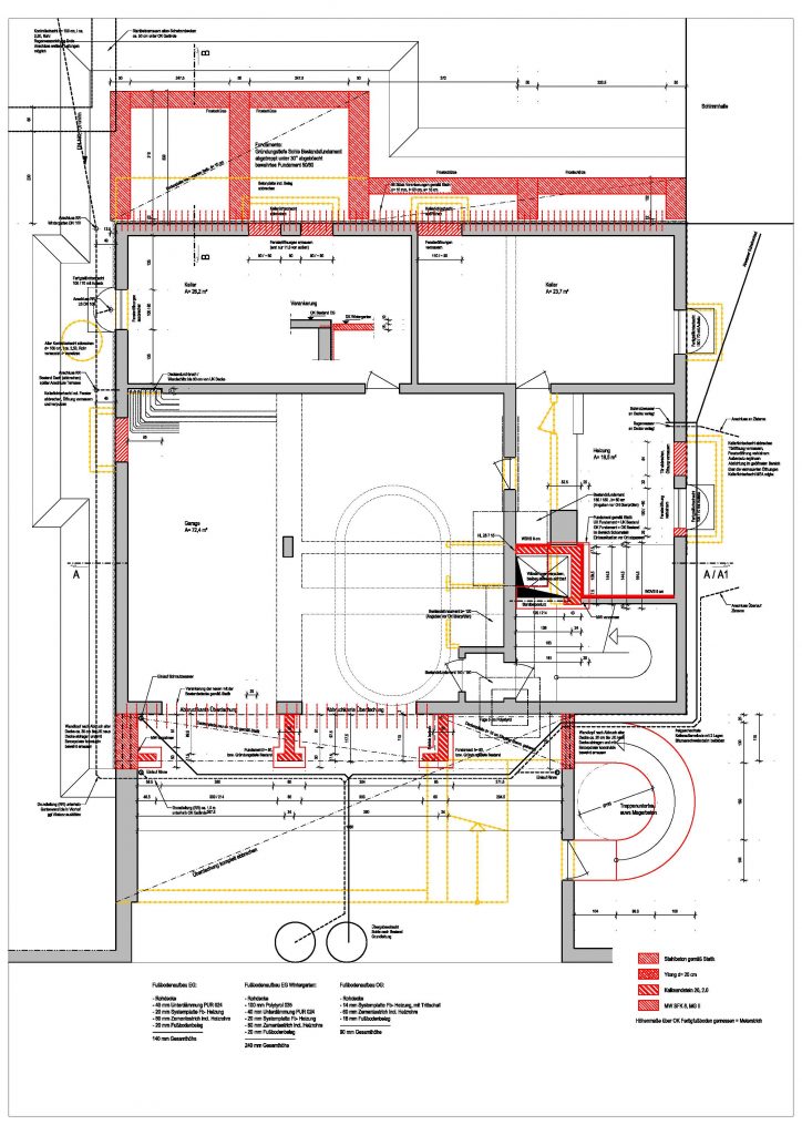
A095
Umbau Einfamilienhaus, Steinbach, 2017