Projekte
Profil
Kontakt
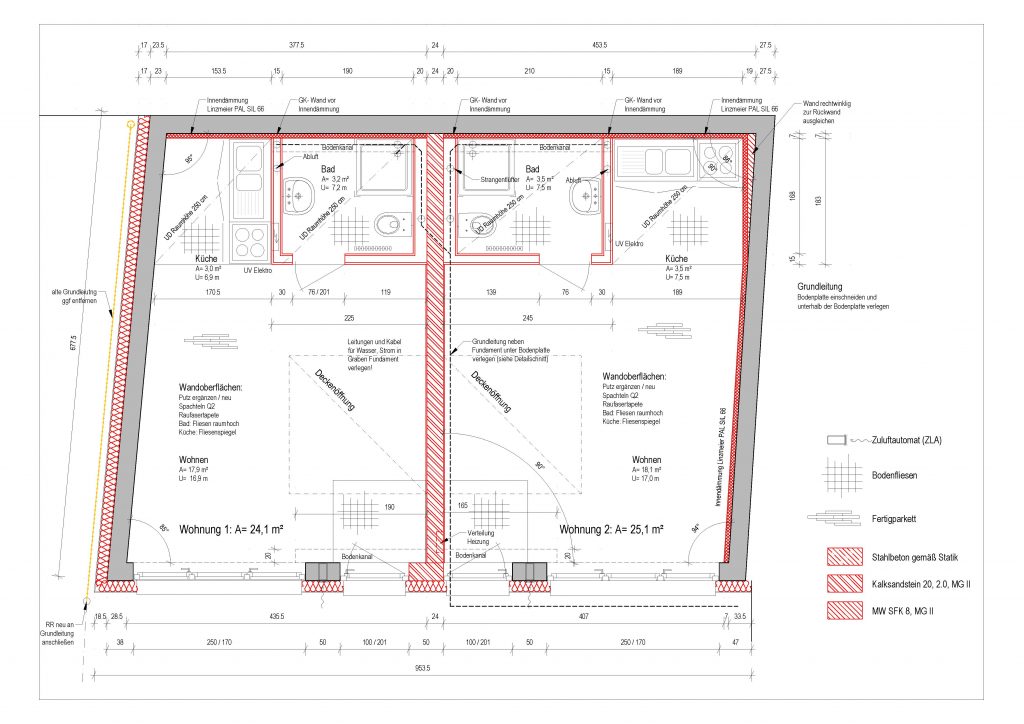
A106
Umbau einer Garage in 2 Wohnungen, 2014