Projekte
Profil
Kontakt
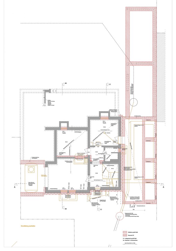
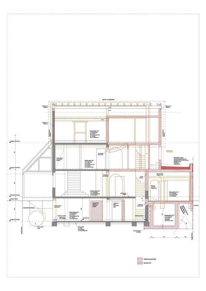
A107
Umbau Einfamilienhaus, Frankfurt, 2019