Projekte
Profil
Kontakt
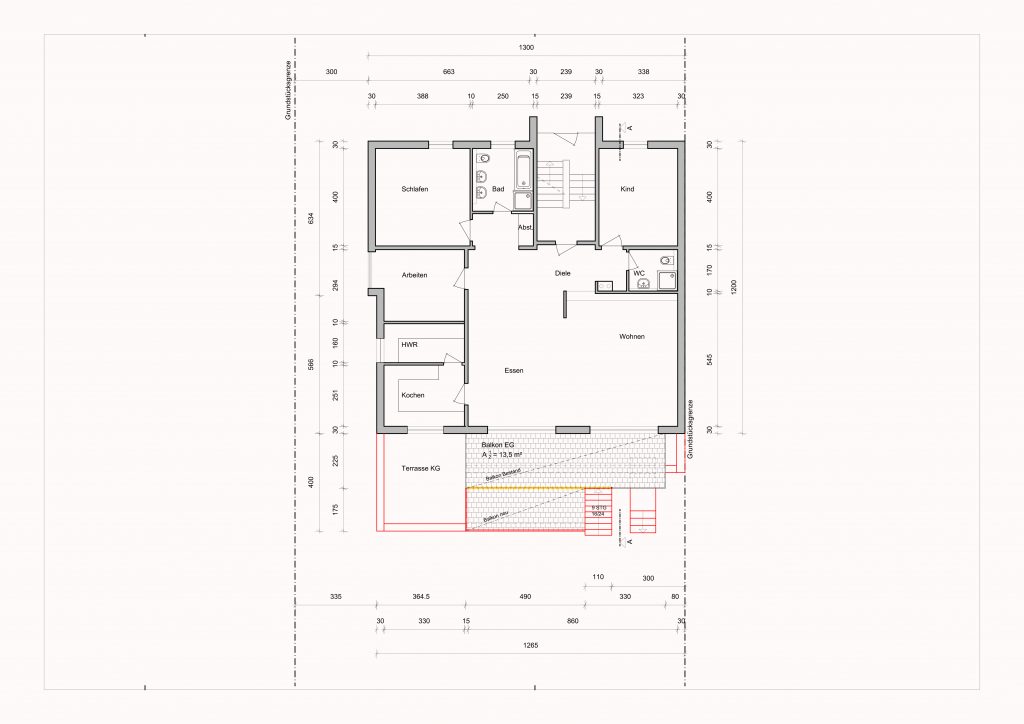
A114
Vergrößerung von Terrasse und Balkon an einem Mehrfamilienhaus, 2018