Projekte
Profil
Kontakt
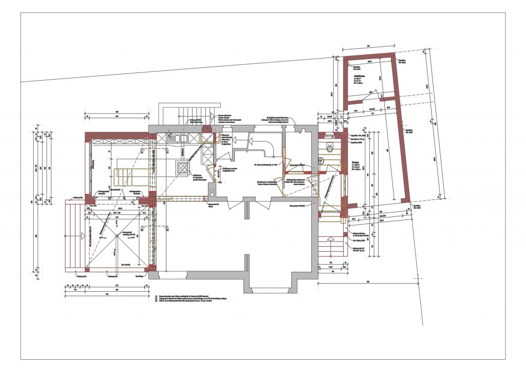
A130
Umbau und Erweiterung Einfamilienhaus, 2019