Projekte
Profil
Kontakt
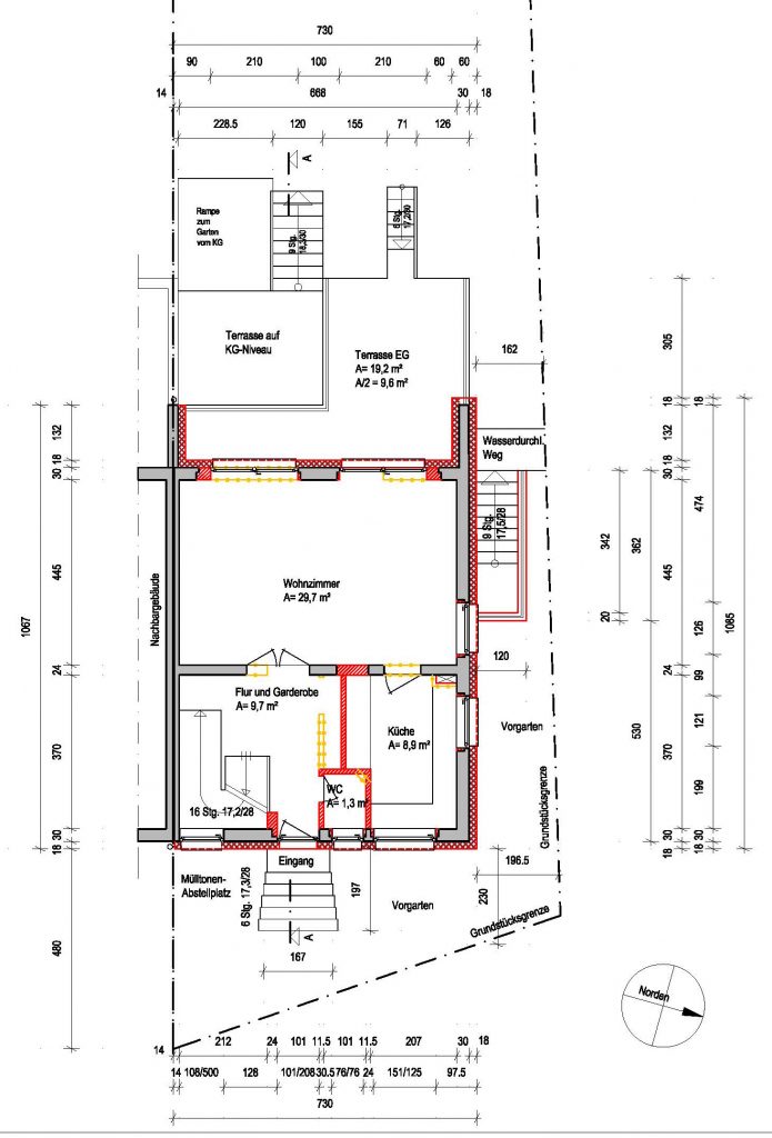
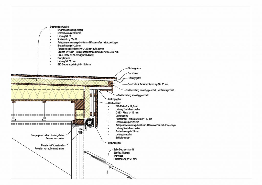
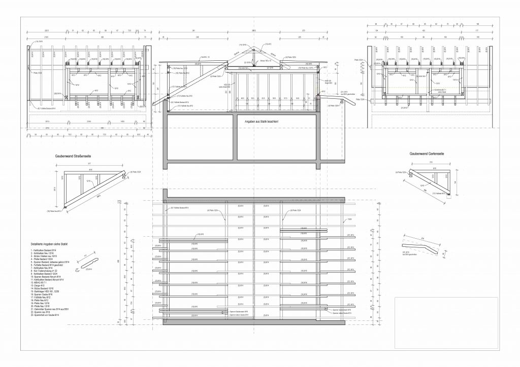
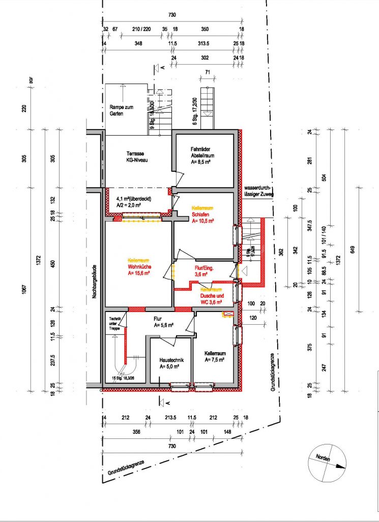
A142
Komplettsanierung Reihenendhaus, Frankfurt, 2020