Projekte
Profil
Kontakt
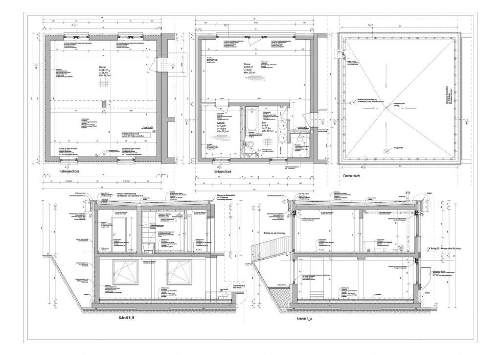
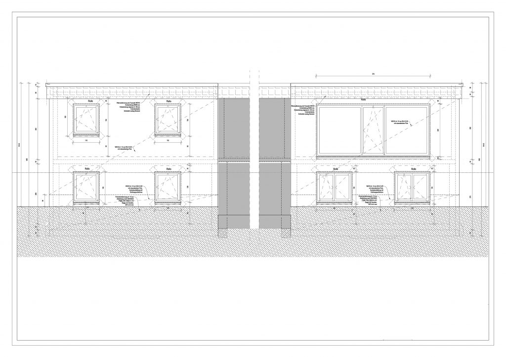
A145
Anbau Einfamilienhaus, Frankfurt, 2022