Projekte
Profil
Kontakt
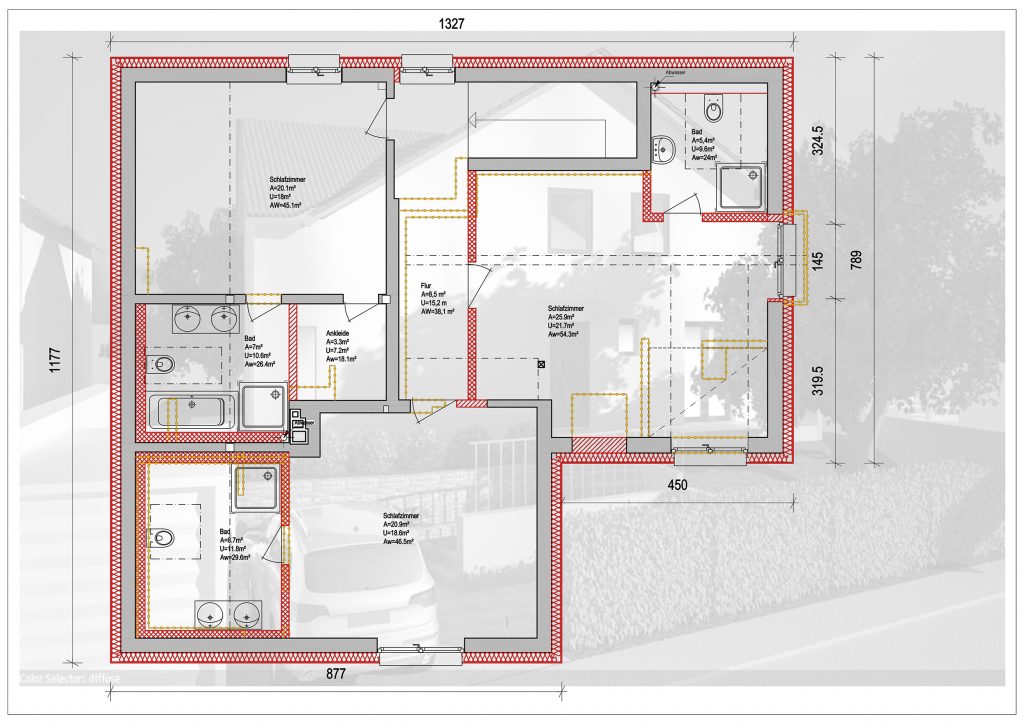
A146
Komplettsanierung Einfamilienhaus, Eschborn, 2013