Projekte
Profil
Kontakt
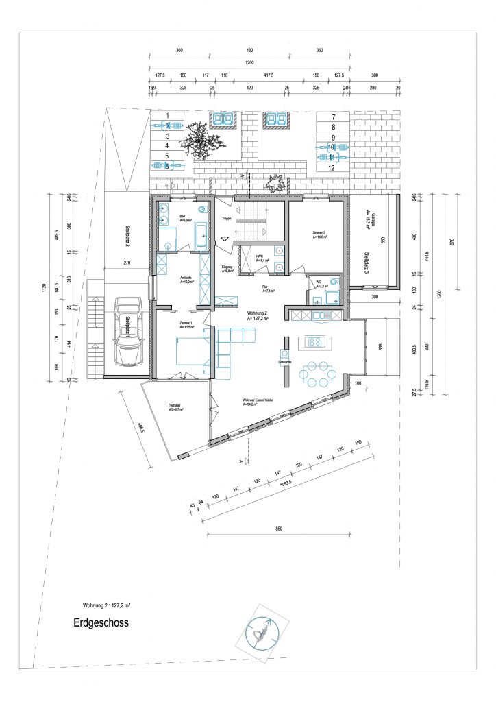
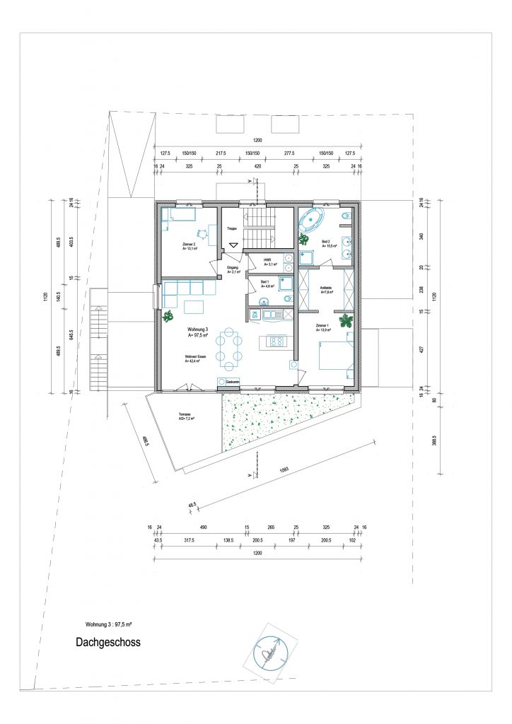
A151
Planung Mehrfamilienhaus, Frankfurt, 2024