Projekte
Profil
Kontakt
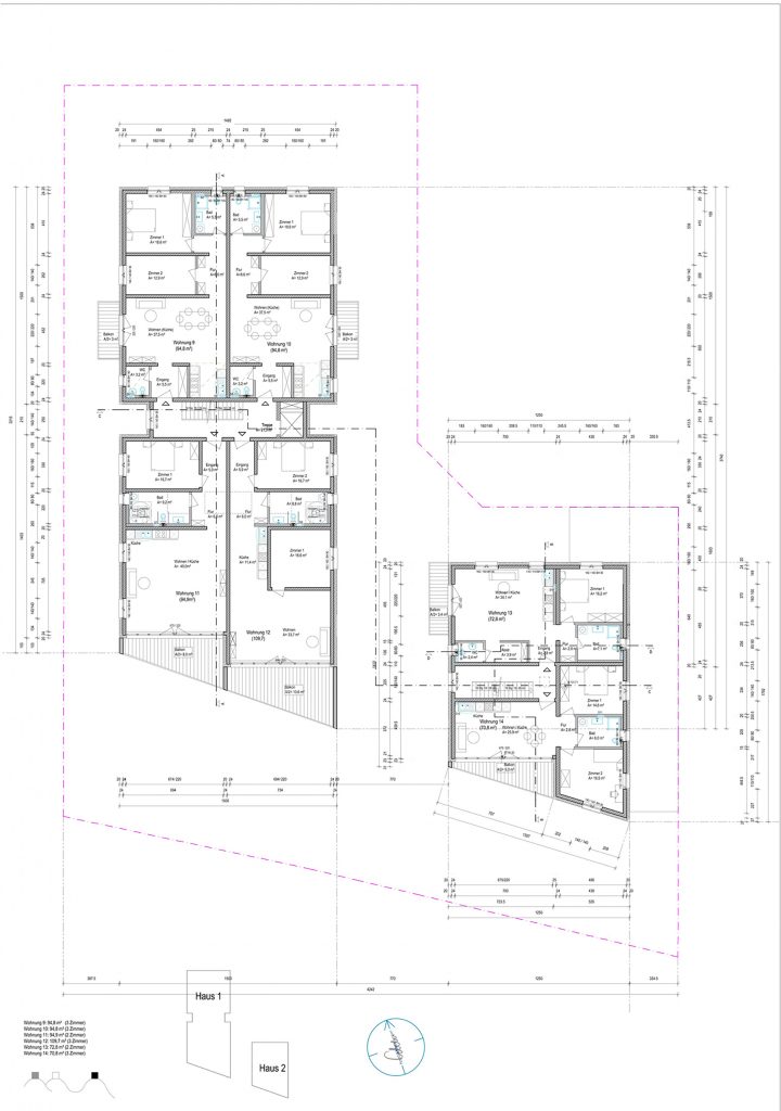
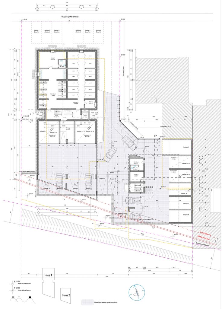
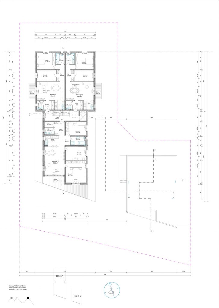
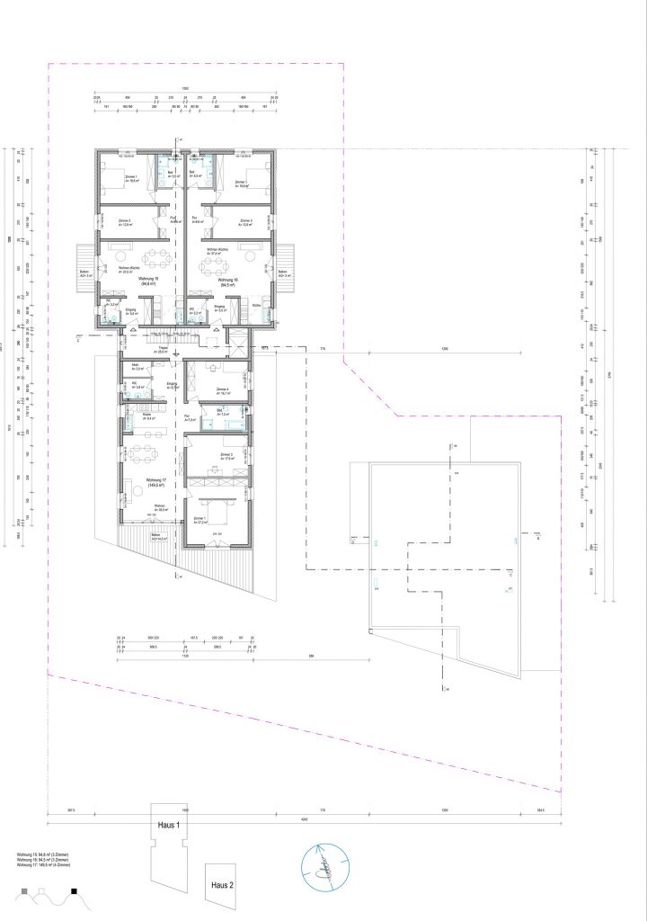
A153
Planung 2 Mehrfamilienhäuser, Sulzbach, 2024