Projekte
Profil
Kontakt
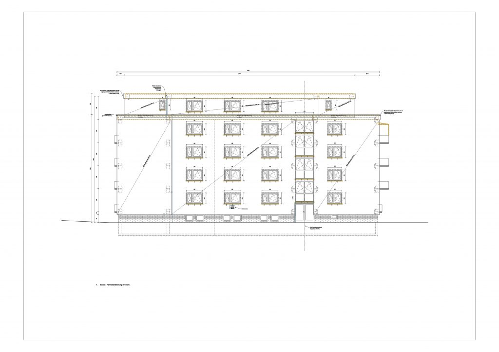
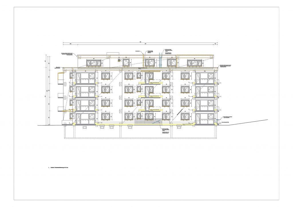
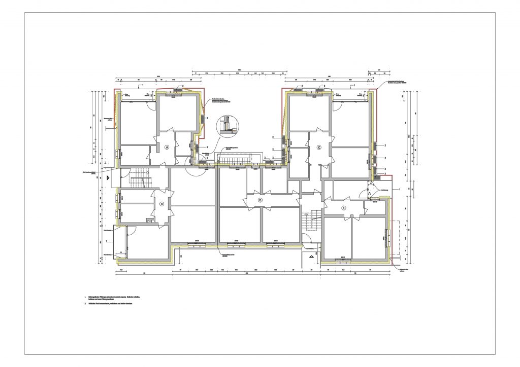
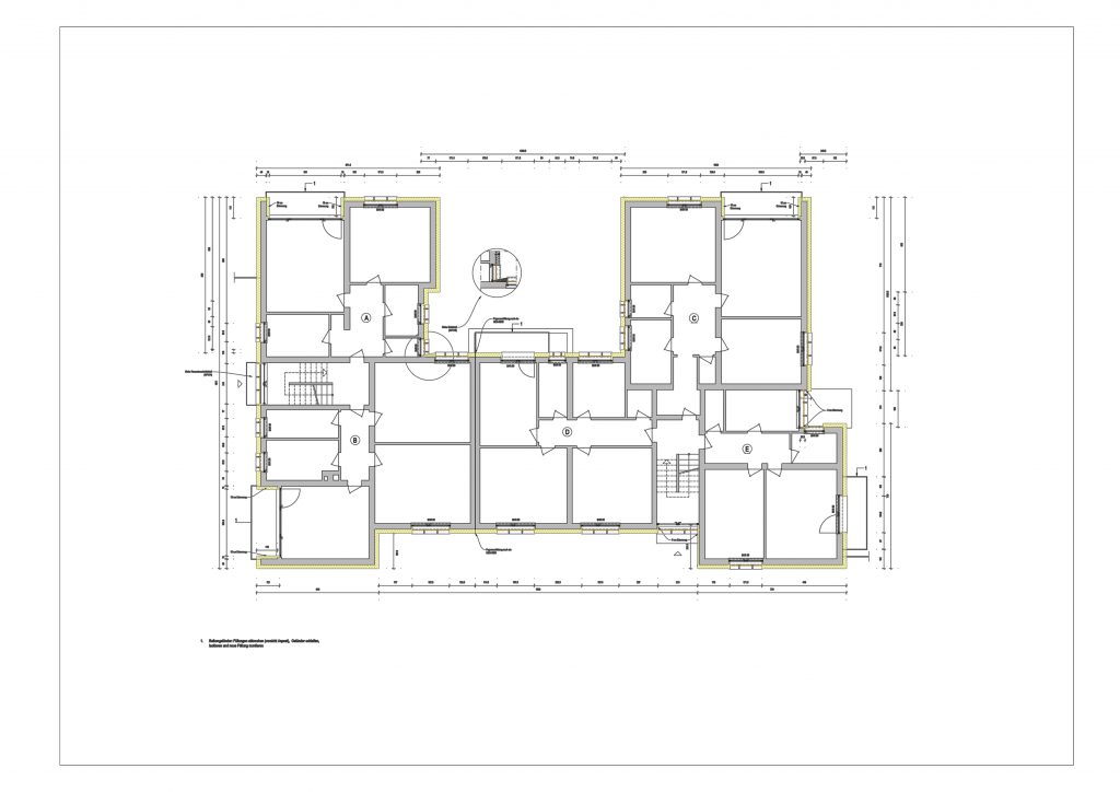
A179
Planung Fassadensanierung, Bad Vilbel, 2024